ミナミサニーハウス

賃料 5.8万円

1/6

物件番号「58242」をお伝えください。

電話でお問合せ LINEでお問合せ

物件情報

賃料 5.8万円
管理費等 2,000円
敷金/保証金 1万円/-
礼金 1ヶ月
めやす賃料
フリーレント
タイプ アパート
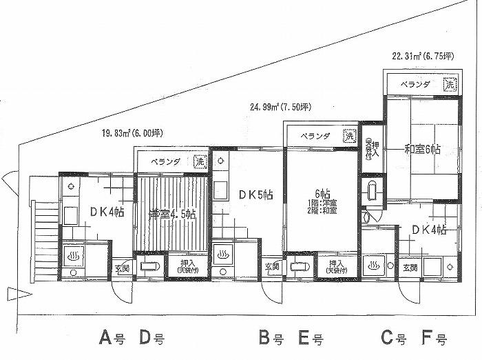
間取 1DK
所在地
杉並区阿佐谷南1丁目 地図
学区 /
交通 東京メトロ丸ノ内線 南阿佐ヶ谷駅まで 徒歩6分
JR中央線 阿佐ヶ谷駅まで 徒歩10分
面積 19.83m²
建物構造 木造
階/階建 2階/2階建
棟総戸数 -
向き
駐車場
保険 20,000円
敷引・償却 -
契約期間 2年
更新料 新賃料1ヶ月
引渡時期 即時
現況 空室
取引態様 仲介
仲介手数料 1ヶ月
築年月
保証会社詳細
諸費用
特色 阿佐ヶ谷賃貸不動産情報、嬉しい礼金1ヶ月・敷金1ヶ月です(^.^)、夜道も安心ですよ、やっぱり2階以上だね、バストイレ別、ガスキッチン、お風呂バランス釜ですm(__)m、トイレ和式なんです、もちろんエアコン付き、洋室が好き、バルコニー・ベランダ、収納がなくちゃ!、ドアフォン、南向き日当り良好、友人・姉妹・兄弟・2人入居可、インターネット対応、CATV対応、J-com対応、商店街が近いです、コンビニ近いです、閑静な住宅街の一角静かです、地デジ対応です、中央線と丸ノ内線の間だよ、2駅使えてとても便利だよ、★賃料値下げしました(^-^)★
コメント ★南阿佐ヶ谷駅6分、2階、バストイレ別、ガスキッチン、JCOM対応可、トイレ和式、お風呂バランス釜
※掲載されている物件データが現状と異なる場合は現状を優先します。

更新情報

情報更新日 2026年04月29日
次回更新予定日 2026年04月30日

物件番号「58242」をお伝えください。

電話でお問合せ LINEでお問合せ
電話 メール LINE
簡易お問合せ

お名前


メールアドレス


問合せ内容